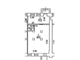
Продажа помещения свободного назначения 74.6 м²

18.03.2026

Москва, Ленинградское шоссе, 228к4

Объект свободного назначения

Предлагается в продажу помещение свободного назначения, расположенное в ЖК 1-й Ленинградский площадью 74.6 кв.м. Располагается на 1 этаже 14-этажного корпуса. Помещение идеально подойдет для...

261 130 руб.2
Ставка продажи
74.6 м2
площадь
1-й этаж из 14
этаж
от собственника
предложение
Подробнее
Аренда помещения свободного назначения 80 м²

17.03.2026

Москва, Малый Палашёвский переулок, 6
Пушкинская100 м

Офисно-складской комплекс

Прямая аренда от собственника, без комиссии. Отдельный вход с боку здания. Место под вывеску на фасаде.Помещение свободного назначения 80 м2 на 1 этаже в бизнес-центре, Зальная планировка. Высокие...

60 000 руб.2 в год
Ставка аренды
80 м2
площадь
1-й этаж из 4
этаж
от собственника
предложение
Подробнее
Аренда помещения свободного назначения 65 м²

18.03.2026

Москва, Новомосковский административный округ, Щербинка, квартал Южный, 7

Многофункциональный комплекс

Арт. 124798775 Сдается помещение свободного назначения, 65 м2 под пиццерию, кафе, ПВЗ, торговую площадь, имеется профессиональная вытяжка, хорошее освещение, удобная локация, парковка.

13 846 руб.2 в год
Ставка аренды
65 м2
площадь
1-й этаж из 17
этаж
от собственника
предложение
Подробнее
Аренда помещения свободного назначения 41.3 м²

18.03.2026

Москва, Шмитовский проезд, 37с2
Шелепиха370 м

Бизнес-центр

Помещение с отдельным входом. В аренду сдается помещение свободного назначения. Расположено на 6-м этаже в центральной торговой галерее БЦ с кафе и ресторанами, общая площадь 41,25 кв.м. Высота...

147 200 руб.2 в год
Ставка аренды
41.25 м2
площадь
6-й этаж из 61
этаж
от собственника
предложение
Подробнее
Аренда помещения свободного назначения 45.2 м²

17.03.2026

Москва, Сельскохозяйственная улица, 24Ак1
Ботанический Сад970 м

Многофункциональный комплекс

Арт. 109117793 Старт Вашего бизнеса в уникальном ЖК «СОЮЗ» Предлагаем в аренду коммерческое помещение площадью 45,2 кв.м., расположенное на первом этаже премиального жилого комплекса «СОЮЗ...

72 000 руб.2 в год
Ставка аренды
45.2 м2
площадь
1-й этаж из 23
этаж
от собственника
предложение
Подробнее
Аренда помещения свободного назначения 80 м²

16.03.2026

Москва, Новомосковский административный округ, посёлок Коммунарка, улица Потаповская Роща, 20к1
Бунинская Аллея1.7 км

Многофункциональный комплекс

Сдается уникальное помещение с дизайнерским ремонтом в ЖК «Белые ночи»Готовое решение для успешного бизнеса: бар, ресторан, кофейня, лаунж-кафе.Откройте свое заведение в самом сердце нового...

25 500 руб.2 в год
Ставка аренды
80 м2
площадь
1-й этаж из 15
этаж
от собственника
предложение
Подробнее
Аренда помещения свободного назначения 72.5 м²

12.03.2026

Москва, Производственная улица, 17
Говорово2.7 км

Многофункциональный комплекс

Арт. 129910558 Штучное предложение! Активный пешеходный трафик. Арендные каникулы.Готовы к профессиональному диалогу. Оперативно покажем. Витрины на три стороны света;общая площадь — 72.5 кв.

48 000 руб.2 в год
Ставка аренды
72.5 м2
площадь
1-й этаж из 22
этаж
от собственника
предложение
Подробнее
Продажа помещения свободного назначения 44.7 м²

14.03.2026

Москва, Кировоградская улица, 9к1
Южная400 м

Торгово-развлекательный центр

Код объекта: 1973191.<br>Продаю помещение свободного назначения в торгом центре «Лавка».<br> <br>Торговый центр расположен в густонаселеном районе в 3 минутах ходьбы до метро...

243 848 руб.2
Ставка продажи
44.7 м2
площадь
2-й этаж из 2
этаж
от собственника
предложение
Подробнее
Продажа помещения свободного назначения 44 м²

15.03.2026

Москва, Кировоградская улица, 9к1
Южная400 м

Торгово-развлекательный центр

Код объекта: 1973249.<br>Продаю помещение свободного назначения в торгом центре «Лавка».<br> <br>Торговый центр расположен в густонаселеном районе в 3 минутах ходьбы до метро...

249 773 руб.2
Ставка продажи
44 м2
площадь
2-й этаж из 2
этаж
от собственника
предложение
Подробнее
Аренда помещения свободного назначения 47 м²

18.03.2026

Москва, Выборгская улица, 18
Водный Стадион900 м

Бизнес-центр

Торговое помещение в аренду, площадью 47 кв.м от Застройщика на 1 этаже нового Бизнес Центра класса В+ Невский Плаза (корпус 2), по адресу: г.Москва, ул. Выборгская вл.18. Ввод в эксплуатацию - IV...

55 000 руб.2 в год
Ставка аренды
47 м2
площадь
1-й этаж из 27
этаж
от собственника
предложение
Подробнее
Аренда помещения свободного назначения 38 м²

18.03.2026

Москва, Выборгская улица, 18
Водный Стадион900 м

Бизнес-центр

Торговое помещение в аренду, площадью 38 кв.м от Застройщика на 1 этаже нового Бизнес-центра класса В+ Невский Плаза, по адресу: г.Москва, ул. Выборгская вл.18. Ввод в эксплуатацию - IV кв.

55 000 руб.2 в год
Ставка аренды
38 м2
площадь
1-й этаж из 27
этаж
от собственника
предложение
Подробнее
Продажа помещения свободного назначения 40.9 м²

18.03.2026

Москва, Иловайская улица, 3Ас6
Марьино1.6 км

Объект свободного назначения

Стрит-ритейл в новом ЖК «Страна. Заречная» в Москве от федерального застройщика «Страна Девелопмент». Проект расположен в пешей доступности от станции МЦД «Перерва». Район Марьино активно...

659 902 руб.2
Ставка продажи
40.9 м2
площадь
1-й этаж из 38
этаж
от собственника
предложение
Подробнее
Продажа помещения свободного назначения 61.9 м²

18.03.2026

Москва, Ленинградское шоссе, 228к4

Объект свободного назначения

Предлагается в продажу помещение свободного назначения, расположенное в ЖК 1-й Ленинградский площадью 61.9 кв.м. Располагается на 1 этаже 14-этажного корпуса. Помещение идеально подойдет для...

277 338 руб.2
Ставка продажи
61.9 м2
площадь
1-й этаж из 14
этаж
от собственника
предложение
Подробнее
Продажа помещения свободного назначения 65.2 м²

18.03.2026

Москва, Ленинградское шоссе, 228к4

Объект свободного назначения

Предлагается в продажу помещение свободного назначения, расположенное в ЖК 1-й Ленинградский площадью 65.2 кв.м. Располагается на 1 этаже 14-этажного корпуса. Помещение идеально подойдет для...

265 071 руб.2
Ставка продажи
65.2 м2
площадь
1-й этаж из 14
этаж
от собственника
предложение
Подробнее
Продажа помещения свободного назначения 50 м²

18.03.2026

Москва, Щёлковское шоссе, 94
Щелковская1.7 км

Офисно-складской комплекс

Код объекта: 2010982.<br>Уникальное предложение для бизнеса в Москве: продаётся готовый Кафе- Крафт Бар на Щёлковском шоссе, 94. Этот объект — идеальное решение для тех, кто хочет быстро...

126 000 руб.2
Ставка продажи
50 м2
площадь
1-й этаж из 1
этаж
от собственника
предложение
Подробнее
Аренда помещения свободного назначения 55 м²

18.03.2026

Москва, Выборгская улица, 18
Водный Стадион900 м

Бизнес-центр

Торговое помещение в аренду, площадью 55 кв.м от Застройщика на 1 этаже нового Бизнес Центра класса В+ Невский Плаза (корпус 2), по адресу: г.Москва, ул. Выборгская вл.18. Ввод в эксплуатацию - IV...

50 000 руб.2 в год
Ставка аренды
55 м2
площадь
1-й этаж из 27
этаж
от собственника
предложение
Подробнее
Аренда помещения свободного назначения 72.5 м²

18.03.2026

Москва, Производственная улица, 17
Говорово2.7 км

Многофункциональный комплекс

Арт. 132913126 Витрины на три стороны света.Активный пешеходный трафик. Арендные каникулы. Общая площадь — 72.5 кв. м;центральные коммуникации;выделенная мощность электричество — 18 кВт (можно...

44 524 руб.2 в год
Ставка аренды
72.5 м2
площадь
1-й этаж из 22
этаж
от собственника
предложение
Подробнее
Продажа помещения свободного назначения 80 м²

18.03.2026

Москва, 2-я Рыбинская улица, 13
Красносельская1.2 км

Многофункциональный комплекс

Арт. 132341332 Коммерческая недвижимость свободной планировки предлагается к продаже в престижном комплексе «Loft Garden». Просторное светлое помещение. Есть возможность обустройства антресоли...

248 750 руб.2
Ставка продажи
80 м2
площадь
4-й этаж из 4
этаж
от собственника
предложение
Подробнее
Продажа помещения свободного назначения 32.5 м²

19.03.2026

Москва, Монтажная улица, вл8/24
Щелковская1.6 км

Объект свободного назначения

Предлагается в продажу помещение свободного назначения, расположенное в ЖК 1-й Измайловский, площадью 32.5. Располагается на 1-м этаже 23-этажного корпуса. Помещение идеально подойдет для магазина...

551 015 руб.2
Ставка продажи
32.5 м2
площадь
1-й этаж из 23
этаж
от собственника
предложение
Подробнее
Продажа помещения свободного назначения 78.2 м²

19.03.2026

Москва, Муравская улица, 46к3
Пятницкое Шоссе1.6 км

Объект свободного назначения

Продажа от застройщика. Продается помещение свободного назначения в ЖК Аквилон Митино, 4 корпус, общей площадью 78.2 кв.м. на 1-м этаже 24 этажного дома. Благодаря большому числу жителей жилого...

381 147 руб.2
Ставка продажи
78.2 м2
площадь
1-й этаж из 24
этаж
от собственника
предложение
Подробнее

Помещения под буфет в аренду и на продажу на карте Москвы

 Увеличьте масштаб карты, чтобы увидеть все предложения в интересующем вас районе

Оперативная поддержка и консультации профессионалов

Ведущие специалисты Москвы по недвижимости всегда готовы прийти к вам на помощь, просто оставьте запрос на помещение!

Скидки и спецпредложения

Акции и скидки от собственников и застройщиков коммерческой недвижимости. На правах рекламы