Площадь, м²
90.1
Стоимость, руб.
24 477 000
Ставка, руб./м²
271 665

Контакты

  • Компания ФСК
  • Контактное лицо Отдел продаж
  • Предложение от собственника
  • Телефон +7 495 152 ••• Показать

Если вам не удалось дозвониться до собственника в нерабочее время, вы можете заказать обратный звонок.

Заказать обратный звонок

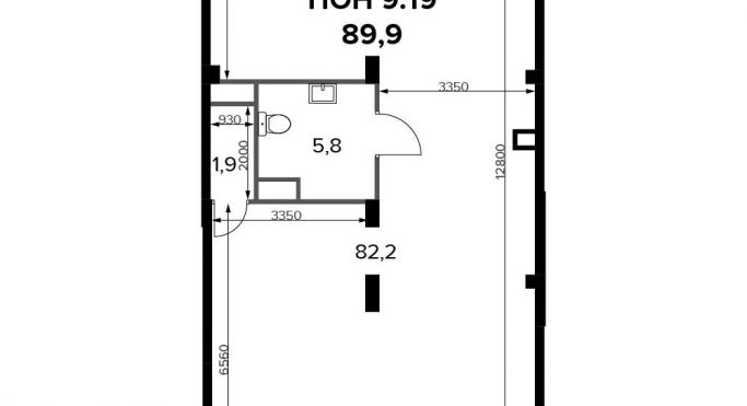
Описание помещения свободного назначения

Предлагается в продажу помещение свободного назначения, расположенное в ЖК 1-й Ленинградский площадью 90.1 кв.м. Располагается на 1 этаже 14-этажного корпуса. Помещение идеально подойдет для магазина, кафе, офиса или другого бизнеса благодаря функциональной планировке и большому потоку потенциальных клиентов. Информация о комплексе: В концепции благоустройства гармонично сочетаются черты двух городов. Территорию комплекса пронизали стрелы прогулочных бульваров, уменьшенные копии петербургских проспектов. Стремимся, чтобы каждый элемент ЖК был продуман, наполнен комфортом и заботой для всех жителей, включая четырехлапых. В каждой квартире подключен базовый пакет Умная квартира забудьте о беспокойстве о протечке; настройте свои сценарии управления техникой и электричеством; общайтесь с Умной квартирой голосом; Можете легко расширить базовый пакет и подключить дополнительные опции и устройства, чтобы из любой точки мира управляй работой бытовых приборов и систем, например: включайте разогрев ужина; регулируйте яркость яркость света; регулируйте громкость музыки; настраивайте работу теплых полов. Транспортная доступность: 15 минут пешком до станции Молжаниново (Планерная) , МЦД3. Всего в 7 км от МКАД по Ленинградскому шоссе, сразу после пересечения с Международным шоссе. Внутренняя инфраструктура: Для детских игр и отдыха взрослых в квартале предусмотрено множество вариантов уютных московских двориков. Детские зоны отделены от взрослых, спортивные площадки и зоны воркаута с их шумными играми вынесены за пределы дворов. В обустройстве всех зон использованы только экологичные материалы. Оборудование для игровых площадок разрабатывалось с привлечением детских психологов. Для любителей велосипедов проложены велодорожки, ведущие к живописным прудам. Если же вам нужно в магазин, аптеку, а может, просто захотелось посидеть с семьей или друзьями в кафе по соседству - все необходимое расположено на первых этажах зданий с внешней стороны комплекса.[#7533600#]

Контакты

  • Компания ФСК
  • Контактное лицо Отдел продаж
  • Предложение от собственника
  • Телефон +7 495 152 ••• Показать

Если вам не удалось дозвониться до собственника в нерабочее время, вы можете заказать обратный звонок.

Заказать обратный звонок

Параметры помещения свободного назначения

  • Площадь 90.1 м²
  • Стоимость 24 477 000 руб.
  • Ставка 271 665 руб./м²
  • Предложение от собственника
  • Этаж 1-й из 14
  • Ремонт, состояние помещения требуется ремонт
  • Объект объект свободного назначения
  • Объявление от 20 мая 2026 07:30

Расположение помещения свободного назначения в объекте свободного назначения на карте

Москва, Ленинградское шоссе, 228к4на картепоказать панораму

Пользователи часто ищут...

Похожие предложения по продаже помещений свободного назначения 

Поможем подобрать помещение бесплатно

Румфи.ру подберет вам помещение свободного назначения от собственника. Мы не агентство, это бесплатно и без комиссии.

 Подробнее 

Популярные ЖК с коммерческими помещениями

жилой дом «Малая Ордынка 19» - превью
6 фото

Жилой дом, класс ЖК элитный

Малая Ордынка 19

реализуемые площади от 183 до 267 м²

Москва, улица Малая Ордынка, 19
Третьяковская380 м

«Малая Ордынка 19» — это уникальный проект, расположенный в сердце Москвы, в 5 минутах от Кремля, в том месте, где...

+7 495 181 •• ••
жилой квартал «LIFE-Кутузовский» - превью
9 фото

Жилой квартал, класс ЖК бизнес

LIFE-Кутузовский

реализуемые площади от 80 до 657 м²

Москва, Гжатская улица, 9
Кунцевская1.9 км

Жилой комплекс «LIFE-Кутузовский» – очередной масштабный проект Группы компаний «Пионер», специализирующейся на...

+7 495 186 •• ••
жилой комплекс «LIFE Ботанический сад» - превью
4 фото

Жилой комплекс, класс ЖК бизнес

LIFE Ботанический сад

реализуемые площади от 25 до 400 м²

Москва, проезд Серебрякова, 2Гс2
Ботанический Сад140 м

ЖК «LIFE Ботанический сад» – это новый масштабный проект жилого квартала от ГК «Пионер», надежного застройщика, на...

+7 495 186 •• ••
жилой комплекс TriBeCa apartments - превью
5 фото

Жилой комплекс, класс ЖК -

TriBeCa apartments

реализуемые площади от 11 до 800 м²

Москва, Нижняя Красносельская улица, 35с48
Бауманская470 м

Уютная светлая студия или роскошные двухуровневые апартаменты, а может пентхаус с собственной террасой в 3 минутах от...

+7 495 545 •• ••
жилой комплекс «Белые ночи» - превью
9 фото

Жилой комплекс, класс ЖК комфорт

Белые ночи

реализуемые площади от 80 м²

Москва, поселение Сосенское, жилой комплекс Белые Ночи, к2/3
Бунинская Аллея1.4 км

«Белые ночи» – часть большого района, который застраивает компания «А101» между Коммунаркой и Бутово. Чуть западнее они...

+7 495 126 •• ••
жилой комплекс «Династия» - превью
15 фото

Жилой комплекс, класс ЖК элитный

Династия

реализуемые площади от 49 до 226 м²

Ярославль, улица Свободы, 62Б

На сегодняшний день жилой комплекс бизнес-класса «Династия» является самым стильным и престижным объектом недвижимости...

+7 485 223 •• ••
  Найти по названиюВсе ЖК

Подборки – выбор редации