Площадь, м²
173.9
Стоимость, руб.
68 058 895
Ставка, руб./м²
391 368

Контакты

  • Компания ПИК
  • Контактное лицо Отдел продаж
  • Предложение от собственника
  • Телефон +7 495 153 ••• Показать

Если вам не удалось дозвониться до собственника в нерабочее время, вы можете заказать обратный звонок.

Заказать обратный звонок

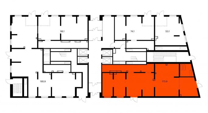
Описание помещения свободного назначения

Продаётся нежилое помещение свободного назначения в готовом корпусе в новом жилом районе Большая Очаковская 2 от ПИК. Открытая планировка, витринное остекление, удобный вход на уровне земли. Помещение (номер на площадке: №28) расположено по адресу: Российская Федерация, город Москва, внутригородская территория муниципальный округ Очаково-Матвеевское, Большая Очаковская улица, дом 2. Продажа напрямую от застройщика.[#7875576#]

Контакты

  • Компания ПИК
  • Контактное лицо Отдел продаж
  • Предложение от собственника
  • Телефон +7 495 153 ••• Показать

Если вам не удалось дозвониться до собственника в нерабочее время, вы можете заказать обратный звонок.

Заказать обратный звонок

Параметры помещения свободного назначения

  • Площадь 173.9 м²
  • Стоимость 68 058 895 руб.
  • Ставка 391 368 руб./м²
  • Предложение от собственника
  • Этаж 1-й из 32
  • Высота потолков 4.94 метра
  • Объект отдельно стоящее здание
  • Объявление от 17 апреля 2026 07:30

Расположение помещения свободного назначения в отдельно стоящем здании на карте

Москва, Большая Очаковская улица, 2на картепоказать панораму

Пользователи часто ищут...

Похожие предложения по продаже помещений свободного назначения 

Поможем подобрать помещение бесплатно

Румфи.ру подберет вам помещение свободного назначения от собственника. Мы не агентство, это бесплатно и без комиссии.

 Подробнее 

Популярные ЖК с коммерческими помещениями

жилой комплекс «Сиреневый парк» - превью
7 фото

Жилой комплекс, класс ЖК комфорт

Сиреневый парк

реализуемые площади от 38 м²

Москва, Тагильская улица, вл4
Бульвар Рокоссовского1.4 км

«Сиреневый парк» – жилой комплекс комфорт-класса, расположенный вблизи парка Лосиный остров. На месте бывших...

+7 495 023 •• ••
жилой комплекс «РЕНОМЭ» - превью
4 фото

Жилой комплекс, класс ЖК элитный

РЕНОМЭ

реализуемые площади от 41 до 133 м²

Москва, Новослободская улица, 24
Менделеевская180 м

Street Retail располагается в элитном доме с уникальной концепцией: «Дом, который дарит время для жизни». Жители...

+7 495 477 •• ••
жилой комплекс TriBeCa apartments - превью
5 фото

Жилой комплекс, класс ЖК -

TriBeCa apartments

реализуемые площади от 11 до 800 м²

Москва, Нижняя Красносельская улица, 35с48
Бауманская470 м

Уютная светлая студия или роскошные двухуровневые апартаменты, а может пентхаус с собственной террасой в 3 минутах от...

+7 495 545 •• ••
жилой дом «Малая Ордынка 19» - превью
6 фото

Жилой дом, класс ЖК элитный

Малая Ордынка 19

реализуемые площади от 183 до 267 м²

Москва, улица Малая Ордынка, 19
Третьяковская380 м

«Малая Ордынка 19» — это уникальный проект, расположенный в сердце Москвы, в 5 минутах от Кремля, в том месте, где...

+7 495 181 •• ••
концепт-лофт LOFTEC - превью
7 фото

Концепт-лофт, класс ЖК бизнес

LOFTEC

реализуемые площади от 20 до 157 м²

Москва, Нижняя Красносельская улица, 35с49
Бауманская560 м

Концепт-лофты — это новые здания, которые воссоздают классическую лофтовую атмосферу. На смену классическому...

Связаться
жилой комплекс «Скандинавия» - превью
10 фото

Жилой комплекс, класс ЖК комфорт

Скандинавия

реализуемые площади от 18 м²

Москва, поселение Сосенское, Скандинавский бульвар, 3к1
Коммунарка2 км

Жилой район «Скандинавия» от ГК «А101» находится в ТиНАО Москвы, всего в 6,5 км от МКАД. Несмотря на близость к трем...

+7 495 127 •• ••
  Найти по названиюВсе ЖК

Подборки – выбор редации