Площадь, м²
70
Стоимость, руб. в месяц
204 400
Ставка, руб./м² в год
35 040

Контакты

  • Компания Садовое кольцо
  • Телефон +7 916 957 ••• Показать

Если вам не удалось дозвониться до собственника в нерабочее время, вы можете заказать обратный звонок.

Заказать обратный звонок

Описание офиса

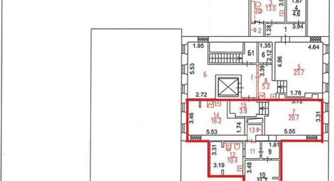
Помещение с мебелью. Александр. Вашему вниманию предлагается офисное помещение 70 кв.м. в особняке в историческом центре Москвы. Особняк расположен на огороженной, охраняемой территории, со своим просторнымй внутренним двором. Дорогая, качественная отделка, дорогая качественная мебель, домашний уют, качественный паркет на полу. Просторное фойе также с дорогой мебелью. Офисное помещение состоит из двух больших комнат (21 и 16 кв. м) и одной комнаты поменьше (12 кв. м), плюс санузел. Также есть места общего пользования с креслами, диванами. Везде домашний уют и домашняя атмосфера. Смотрите схему: границы, сдаваемого помещения, выделены красным цветом. Рассмотрим компании без высокой посещяемости. Юр. адрес предоставляется. Общая площадь 70 кв.м. 204 400 руб в месяц за все помещение. НДС включен в стоимость. Коммунальные услуги и электричество оплачиваются отдельно. Стоимость одного машино-места 25 000 в месяц.

Контакты

  • Компания Садовое кольцо
  • Телефон +7 916 957 ••• Показать

Если вам не удалось дозвониться до собственника в нерабочее время, вы можете заказать обратный звонок.

Заказать обратный звонок

Параметры офиса

Что нужно знать, какие вопросы стоит задать при покупке или аренде офиса

В этой статье мы постараемся простым человеческим языком без заумных терминов осветить некоторые важные моменты, о которых не стоит забывать, покупая или арендуя офисное помещение.

журнал Румфи.ру

Расположение офиса на карте

Москва, улица Станиславского, 8на картепоказать панораму

Пользователи часто ищут...

Похожие предложения по аренде офисов 

Поможем подобрать помещение бесплатно

Румфи.ру подберет вам офис от собственника. Мы не агентство, это бесплатно и без комиссии.

 Подробнее 

Популярные бизнес-центры

деловой центр JAZZ - превью
14 фото

Деловой центр, класс B+

JAZZ

реализуемые площади от 53 до 110 м²

Москва, улица Сущёвский Вал, 49с2
Марьина Роща270 м

Деловой центр JAZZ удобно расположился в Северо-Восточном административном округе Москвы, в районе Марьина Роща, и...

+7 495 104 •• ••
офисный парк Comcity - превью
18 фото

Офисный парк, класс A

Comcity

реализуемые площади от 1 000 до 6 000 м²

Москва, поселение Московский, Киевское шоссе, 22-й километр, 6с1
Румянцево620 м

Comcity – современный фешенебельный офисный парк класса А от девелопера PPF Real Estate Russia, находящийся на...

+7 495 799 •• ••
бизнес-центр «Маршала Жукова 76» - превью
4 фото

Бизнес-центр, класс B

Маршала Жукова 76

реализуемые площади по запросу

Москва, проспект Маршала Жукова, 76к2
Октябрьское Поле2.9 км

Бизнес-центр Маршала Жукова 76 - это деловой объект класса « B «. Бизнес-центр Маршала Жукова 76 отвечает всем...

Связаться
бизнес-центр BELL - превью
8 фото

Бизнес-центр, класс Prime

BELL

реализуемые площади по запросу

Москва, 1-я улица Ямского Поля, 10А
Белорусская410 м

BELL – офисный небоскреб, высотой более 220 метров, который предназначен для самых требовательных резидентов.

+7 495 255 •• ••
бизнес-центр iCity - превью
11 фото

Бизнес-центр, класс A

iCity

реализуемые площади по запросу

Москва, Шмитовский проезд, 37
Шелепиха370 м

Бизнес-центр iCity высотой до 256 метров состоит из двух башен высотностью 34 (Time Tower) и 61 (Space Tower) этажей.

+7 495 023 •• ••
бизнес-центр «Рублево Бизнес Парк» - превью
15 фото

Бизнес-центр, класс A

Рублево Бизнес Парк

реализуемые площади от 12 до 2 951 м²

Москва, МКАД, 64-й километр, 1
Строгино1.4 км

Продажа офисов в бизнес-центре класса «А» Рублево Бизнес Парк. Рублево Бизнес Парк — современный бизнес-центр класса А...

+7 495 885 •• ••
  Найти по названиюВсе бизнес-центры

Подборки – выбор редации