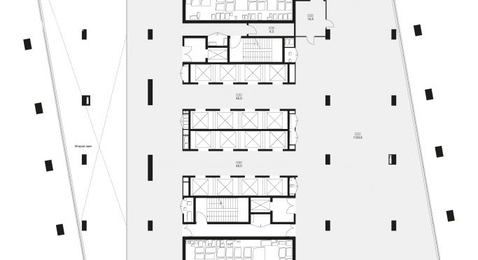
Площадь, м²
29250.3
Стоимость, руб. в месяц
123 762 888
Ставка, руб./м² в год
50 774

Контакты

  • Компания владелец
  • Контактное лицо Отдел продаж
  • Предложение от собственника
  • Телефон +7 495 021 ••• Показать

Если вам не удалось дозвониться до собственника в нерабочее время, вы можете заказать обратный звонок.

Заказать обратный звонок

Описание офиса

Аренда (офисов/ крупных офисных блоков) в новом БЦ Сидней Сити, всего в 5 минутах от ММДЦ Москва-сити! В аренду предлагаются офисы без отделки напрямую от ФСК БЕЗ КОМИССИИ!! БЦ Сидней Сити — это новый Бизнес-центр класса "А" всего в 5 минутах от ММДЦ Москва-сити, а с 4 кв. 2026 г., благодаря открытию новой ст. метро Звенигородская (Рублево-Архангельской ветки), всего в 1 станции метро от Москва-сити! БЦ Сидней Сити расположен в самом центре Большого Сити с прекрасными видовыми характеристиками на Шелепихинскую набережную. Станция метро и МЦК "Шелепиха" находятся в 15-минутной пешеходной доступности, а с 4 кв. 2026 г. выход из новой ст.м. метро "Звенигородская" будет располагаться непосредственно у входа в бизнес-центр. В новом бизнес-центре предлагаются в долгосрочную аренду офисные помещения площадью от 1 100 м2 до 29 250 м2, которые располагаются на 4-16 этажах. В бизнес-центре выполняется высококачественная отделка мест общего пользования, а офисные помещения сдаются в состоянии "под отделку". Арендодатель готов предоставить арендные каникулы на ремонт или выполнить отделку офисной части помещения по типовому дизайн-проекту ФСК с учетом требований арендатора. БЦ Сидней Сити - это современные архитектура от бюро Кляйневельт Архитектен, инженерные решения и комфортные офисы с панорамным остеклением «в пол» и открытой эффективной планировкой. Шаг колонн 8,4 х 8,4 м, энерговооруженность - 100 Вт/м2, 5 отдельных лифтовых групп, в т.ч. 17 грузопассажирских лифтов. Офисы на 4, 11, 16 этажах имеют собственную панорамную террасу. Воздухообмен 60 м3/час, кондиционирование по схеме чиллер/фанк-ойл. Автоматическая система спринклерного пожаротушения, АПС, СОУЭ, ДУ. Автоматизация и диспетчеризация базовых инженерных систем и ПБ. Просторная двусветная входная группа с торгово-сервисными помещениями и рестораном на 1 и 2 этажах. Многоуровневый паркинг на 313 м/м, 250 м/м доступны в аренду вместе с офисами. Ставка аренды паркинга – по запросу. Доступ к обширной инфраструктуре ЖК Сидней Сити. Сидней Сити - новый проект премиум-класса на Шелепихинской набережной. На территории в 19,3 га ведется строительство 23 жилых корпусов, переменной этажности 8-44 этажей. Квартал обладает развитой собственной социальной и коммерческой инфраструктурой, начиная от престижной школы и д/с и заканчивая фудхоллом и развлекательным центром. Ставка аренды офисов включает НДС, не включает ОРЕХ и коммунальные платежи. Ставка эксплуатационных расходов определяется в диапазоне от 10 500 до 12 500 руб./кв.м/год вкл. НДС. Позвоните, мы оперативно организуем просмотр помещения в комфортное для вас время и ответим на все интересующие вас вопросы![#8017295#]

Контакты

  • Компания владелец
  • Контактное лицо Отдел продаж
  • Предложение от собственника
  • Телефон +7 495 021 ••• Показать

Если вам не удалось дозвониться до собственника в нерабочее время, вы можете заказать обратный звонок.

Заказать обратный звонок

Параметры офиса

  • Площадь 29250.3 м²
  • Стоимость 123 762 888 руб. в месяц
  • Ставка 50 774 руб./м² в год
  • Предложение от собственника
  • Этаж 16-й из 24
  • Ремонт, состояние помещения частичный ремонт
  • Объект бизнес-центр
  • Класс БЦ A+
  • Объявление от 4 мая 2026 07:30

Что нужно знать, какие вопросы стоит задать при покупке или аренде офиса

В этой статье мы постараемся простым человеческим языком без заумных терминов осветить некоторые важные моменты, о которых не стоит забывать, покупая или арендуя офисное помещение.

журнал Румфи.ру

Расположение офиса в бизнес-центре на карте

Москва, улица Шеногина, вл2/11на картепоказать панораму

Пользователи часто ищут...

Похожие предложения по аренде офисов 

Поможем подобрать помещение бесплатно

Румфи.ру подберет вам офис от собственника. Мы не агентство, это бесплатно и без комиссии.

 Подробнее 

Популярные бизнес-центры

бизнес-парк Ostankino Business Park - превью
9 фото

Бизнес-парк, класс A

Ostankino Business Park

реализуемые площади от 70 м²

Москва, Огородный проезд, 16с14
Бутырская200 м

OSTANKINO BUSINESS PARK располагается в СВАО Москвы, в районе Бутырский. Бизнес-парк Класса А. Шесть зданий высотой до...

+7 495 480 •• ••
деловой центр JAZZ - превью
14 фото

Деловой центр, класс B+

JAZZ

реализуемые площади от 53 до 110 м²

Москва, улица Сущёвский Вал, 49с2
Марьина Роща270 м

Деловой центр JAZZ удобно расположился в Северо-Восточном административном округе Москвы, в районе Марьина Роща, и...

+7 495 104 •• ••
бизнес-центр «Рублево Бизнес Парк» - превью
15 фото

Бизнес-центр, класс A

Рублево Бизнес Парк

реализуемые площади от 12 до 2 951 м²

Москва, МКАД, 64-й километр, 1
Строгино1.4 км

Продажа офисов в бизнес-центре класса «А» Рублево Бизнес Парк. Рублево Бизнес Парк — современный бизнес-центр класса А...

+7 495 885 •• ••
бизнес-центр «Парк Мира» - превью
13 фото

Бизнес-центр, класс B+

Парк Мира

реализуемые площади от 30 до 1 185 м²

Москва, проспект Мира, 102к1
Алексеевская810 м

Бизнес-центр «Парк Мира» - это комфортабельный деловой комплекс класса «B+». Здание включает в себя лучшие...

+7 495 135 •• ••
бизнес-центр iCity - превью
11 фото

Бизнес-центр, класс A

iCity

реализуемые площади по запросу

Москва, Шмитовский проезд, 37
Шелепиха370 м

Бизнес-центр iCity высотой до 256 метров состоит из двух башен высотностью 34 (Time Tower) и 61 (Space Tower) этажей.

+7 495 023 •• ••
многофункциональный комплекс «Башня Федерация» - превью
13 фото

Многофункциональный комплекс, класс A

Башня Федерация

реализуемые площади по запросу

Москва, Пресненская набережная, 12
Деловой Центр60 м

Комплекс «Башня Федерация» состоит из двух башен различной высоты на шестиэтажном стилобате – 97-этажной башни «Восток...

+7 499 877 •• ••
  Найти по названиюВсе бизнес-центры

Подборки – выбор редации