Площадь, м²
300
Стоимость, руб.
74 057 160
Ставка, руб./м²
246 857

Контакты

  • Компания Апекс Недвижимость
  • Телефон +7 495 001 ••• Показать

Если вам не удалось дозвониться до собственника в нерабочее время, вы можете заказать обратный звонок.

Заказать обратный звонок

Описание помещения свободного назначения

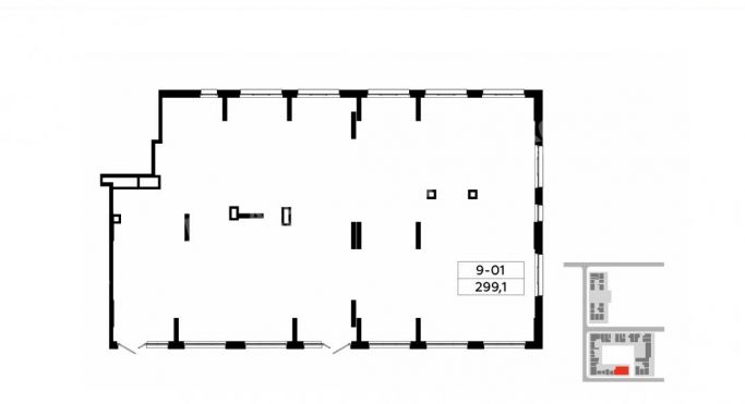
Лот №1058967 Продажа помещения (ПСН) пл. 300 м2 под аптеку, кафе, ресторан, бар, магазин, медцентр, , , , Коммунарка Калужское шоссе в жилом доме. 299,1 м² в ЖК «Бунинские кварталы» / 59,8 кВт / 2 входа / Сдача II кв. 2026 / Рядом метро Потапово Продаётся торговое помещение в новом доме ЖК «Бунинские кварталы». Отличный вариант для инвестора или под собственный бизнес в районе с высокой плотностью населения. Ключевые параметры: Площадь: 299,1 м², первый этаж. Выделенная мощность: 60 кВт. Два отдельных входа с улицы. Есть возможность организации антресоли (увеличение площади). Все коммуникации (вода, канализация, пожарная сигнализация) подведены. Дом сдаётся во II квартале 2026 года. Цена: 74 057 160 ₽ (247 600 ₽/м²). Специальное предложение ниже рыночной стоимости. Жилой комплекс рассчитан на 17 000 жителей — это стабильный спрос и высокая ликвидность объекта. Отличный шанс войти в проект на финальной стадии строительства. П Чтобы получить ПОДРОБНУЮ ПРЕЗЕНТАЦИЮ С ПЛАНИРОВКОЙ И ФОТОГРАФИЯМИ, звоните или отправьте свой email в сообщении на портале. Высылаем в течение 15 минут по запросу! ☎ Конт. лицо: Юлия , доб. 244, ЛОТ №1058967

Контакты

  • Компания Апекс Недвижимость
  • Телефон +7 495 001 ••• Показать

Если вам не удалось дозвониться до собственника в нерабочее время, вы можете заказать обратный звонок.

Заказать обратный звонок

Параметры помещения свободного назначения

  • Площадь 300 м²
  • Стоимость 74 057 160 руб.
  • Ставка 246 857 руб./м²
  • Этаж 1-й
  • Объект жилой дом
  • Объявление от 4 мая 2026 10:00

Расположение помещения свободного назначения в жилом доме на карте

Москва, Новомосковский административный округ, район Коммунарка, проспект Купринана картепоказать панораму

Пользователи часто ищут...

Похожие предложения по продаже помещений свободного назначения 

Поможем подобрать помещение бесплатно

Румфи.ру подберет вам помещение свободного назначения от собственника. Мы не агентство, это бесплатно и без комиссии.

 Подробнее 

Популярные ЖК с коммерческими помещениями

жилой комплекс «Сиреневый парк» - превью
7 фото

Жилой комплекс, класс ЖК комфорт

Сиреневый парк

реализуемые площади от 38 м²

Москва, Тагильская улица, вл4
Бульвар Рокоссовского1.4 км

«Сиреневый парк» – жилой комплекс комфорт-класса, расположенный вблизи парка Лосиный остров. На месте бывших...

+7 495 023 •• ••
жилой район «Прокшино» - превью
7 фото

Жилой район, класс ЖК бизнес

Прокшино

реализуемые площади от 180 м²

Москва, поселение Сосенское, жилой комплекс Прокшино
Прокшино830 м

Жилой район «Прокшино» расположен в юго-западной части Москвы в 7 км от МКАД и 500 м от одноимённой станции метро.

+7 495 126 •• ••
жилой комплекс «Испанские кварталы» - превью
15 фото

Жилой комплекс, класс ЖК комфорт

Испанские кварталы

реализуемые площади от 50 м²

Москва, поселение Сосенское, улица Сервантеса, 1к2
Прокшино1.2 км

«Испанские кварталы» от ГК «А101» – это большой современный жилой район, к проектированию которого застройщиком были...

+7 495 126 •• ••
жилой комплекс «РЕНОМЭ» - превью
4 фото

Жилой комплекс, класс ЖК элитный

РЕНОМЭ

реализуемые площади от 41 до 133 м²

Москва, Новослободская улица, 24
Менделеевская180 м

Street Retail располагается в элитном доме с уникальной концепцией: «Дом, который дарит время для жизни». Жители...

+7 495 477 •• ••
жилой комплекс TriBeCa apartments - превью
5 фото

Жилой комплекс, класс ЖК -

TriBeCa apartments

реализуемые площади от 11 до 800 м²

Москва, Нижняя Красносельская улица, 35с48
Бауманская470 м

Уютная светлая студия или роскошные двухуровневые апартаменты, а может пентхаус с собственной террасой в 3 минутах от...

+7 495 545 •• ••
жилой квартал «LIFE-Кутузовский» - превью
9 фото

Жилой квартал, класс ЖК бизнес

LIFE-Кутузовский

реализуемые площади от 80 до 657 м²

Москва, Гжатская улица, 9
Кунцевская1.9 км

Жилой комплекс «LIFE-Кутузовский» – очередной масштабный проект Группы компаний «Пионер», специализирующейся на...

+7 495 186 •• ••
  Найти по названиюВсе ЖК

Подборки – выбор редации