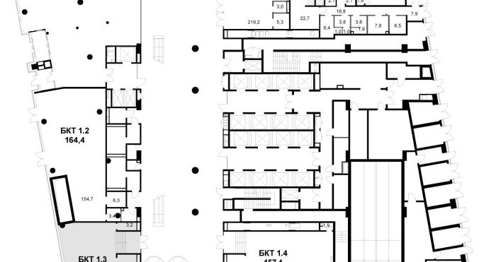
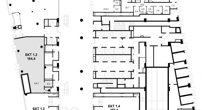
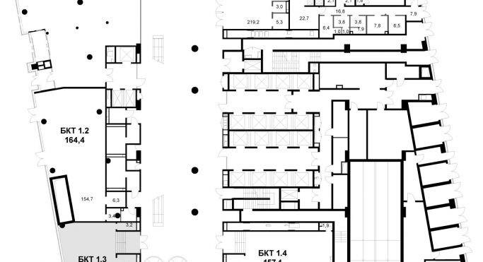
Площадь, м²
164.4
Стоимость, руб. в месяц
1 528 920
Ставка, руб./м² в год
111 600

Контакты

  • Компания владелец
  • Контактное лицо Отдел продаж
  • Предложение от собственника
  • Телефон +7 495 021 ••• Показать

Если вам не удалось дозвониться до собственника в нерабочее время, вы можете заказать обратный звонок.

Заказать обратный звонок

Описание помещения свободного назначения

Аренда помещений свободного назначения в новом БЦ Сидней Сити, всего в 5 минутах от ММДЦ Москва-сити! В аренду предлагаются помещения без отделки напрямую от ФСК БЕЗ КОМИССИИ!! БЦ Сидней Сити — это новый Бизнес-центр класса "А" всего в 5 минутах от ММДЦ Москва-сити, а с 4 кв. 2026 г., благодаря открытию новой ст. метро Звенигородская (Рублево-Архангельской ветки), всего в 1 станции метро от Москва-сити! БЦ Сидней Сити расположен в самом центре Большого Сити с прекрасными видовыми характеристиками на Шелепихинскую набережную. Станция метро и МЦК "Шелепиха" находятся в 15-минутной пешеходной доступности, а с 4 кв. 2026 г. выход из новой ст.м. метро "Звенигородская" будет располагаться непосредственно у входа в бизнес-центр. В бизнес-центре выполняется высококачественная отделка мест общего пользования, а офисные помещения сдаются в состоянии "под отделку". Арендодатель готов предоставить арендные каникулы на ремонт. БЦ Сидней Сити - это современные архитектура от бюро Кляйневельт Архитектен, инженерные решения и комфортные помещения с панорамным остеклением "в пол" и открытой эффективной планировкой. Шаг колонн 8,4 х 8,4 м, энерговооруженность - 100 Вт/м2, 5 отдельных лифтовых групп, в т.ч. 17 грузопассажирских лифтов марки Митсубиши. Воздухообмен 60 м3/час, кондиционирование по схеме чиллер/фанк-ойл. Автоматическая система спринклерного пожаротушения, АПС, СОУЭ, ДУ. Автоматизация и диспетчеризация базовых инженерных систем и ПБ. Просторная двусветная входная группа с торгово-сервисными помещениями и рестораном на 1 и 2 этажах. Многоуровневый паркинг на 313 м/м, 250 м/м доступны в аренду вместе с офисами. Ставка аренды паркинга по запросу. Расчетная вместимость БЦ - 4800 рабочих мест. Верхние этажи БЦ будет занимать штаб-квартира ГК ФСК (20 000 м2), переезд запланирован на 2 кв. 2026 г. Доступ к обширной инфраструктуре ЖК Сидней Сити. Сидней Сити - новый проект премиум-класса на Шелепихинской набережной. На территории в 19,3 га ведется строительство 23 жилых корпусов, переменной этажности 8-44 этажей. Квартал обладает развитой собственной социальной и коммерческой инфраструктурой, начиная от престижной школы и д/с и заканчивая фудхоллом и развлекательным центром. Ставка аренды помещений включает НДС, не включает эксплуатационные расходы и коммунальные платежи. Ставка эксплуатационных расходов определяется в диапазоне от 10 500 до 12 500 руб./кв.м/год вкл. НДС. Позвоните, мы оперативно организуем просмотр помещения в комфортное для вас время и ответим на все интересующие вас вопросы![#7460138#]

Контакты

  • Компания владелец
  • Контактное лицо Отдел продаж
  • Предложение от собственника
  • Телефон +7 495 021 ••• Показать

Если вам не удалось дозвониться до собственника в нерабочее время, вы можете заказать обратный звонок.

Заказать обратный звонок

Параметры помещения свободного назначения

  • Площадь 164.4 м²
  • Стоимость 1 528 920 руб. в месяц
  • Ставка 111 600 руб./м² в год
  • Предложение от собственника
  • Этаж 1-й из 24
  • Высота потолков 3.8 метра
  • Ремонт, состояние помещения требуется ремонт
  • Объект бизнес-центр
  • Объявление от 4 мая 2026 17:30

Расположение помещения свободного назначения в бизнес-центре на карте

Москва, улица Шеногина, вл2/11на картепоказать панораму

Пользователи часто ищут...

Похожие предложения по аренде помещений свободного назначения 

Поможем подобрать помещение бесплатно

Румфи.ру подберет вам помещение свободного назначения от собственника. Мы не агентство, это бесплатно и без комиссии.

 Подробнее 

Популярные ЖК с коммерческими помещениями

жилой комплекс «РЕНОМЭ» - превью
4 фото

Жилой комплекс, класс ЖК элитный

РЕНОМЭ

реализуемые площади от 41 до 133 м²

Москва, Новослободская улица, 24
Менделеевская180 м

Street Retail располагается в элитном доме с уникальной концепцией: «Дом, который дарит время для жизни». Жители...

+7 495 477 •• ••
жилой комплекс «Династия» - превью
15 фото

Жилой комплекс, класс ЖК элитный

Династия

реализуемые площади от 49 до 226 м²

Ярославль, улица Свободы, 62Б

На сегодняшний день жилой комплекс бизнес-класса «Династия» является самым стильным и престижным объектом недвижимости...

+7 485 223 •• ••
жилой комплекс «Скандинавия» - превью
10 фото

Жилой комплекс, класс ЖК комфорт

Скандинавия

реализуемые площади от 18 м²

Москва, поселение Сосенское, Скандинавский бульвар, 3к1
Коммунарка2 км

Жилой район «Скандинавия» от ГК «А101» находится в ТиНАО Москвы, всего в 6,5 км от МКАД. Несмотря на близость к трем...

+7 495 127 •• ••
жилой комплекс «Белые ночи» - превью
9 фото

Жилой комплекс, класс ЖК комфорт

Белые ночи

реализуемые площади от 80 м²

Москва, поселение Сосенское, жилой комплекс Белые Ночи, к2/3
Бунинская Аллея1.4 км

«Белые ночи» – часть большого района, который застраивает компания «А101» между Коммунаркой и Бутово. Чуть западнее они...

+7 495 126 •• ••
жилой комплекс TriBeCa apartments - превью
5 фото

Жилой комплекс, класс ЖК -

TriBeCa apartments

реализуемые площади от 11 до 800 м²

Москва, Нижняя Красносельская улица, 35с48
Бауманская470 м

Уютная светлая студия или роскошные двухуровневые апартаменты, а может пентхаус с собственной террасой в 3 минутах от...

+7 495 545 •• ••
жилой комплекс «Сиреневый парк» - превью
7 фото

Жилой комплекс, класс ЖК комфорт

Сиреневый парк

реализуемые площади от 38 м²

Москва, Тагильская улица, вл4
Бульвар Рокоссовского1.4 км

«Сиреневый парк» – жилой комплекс комфорт-класса, расположенный вблизи парка Лосиный остров. На месте бывших...

+7 495 023 •• ••
  Найти по названиюВсе ЖК

Подборки – выбор редации