Площадь, м²
5720
Стоимость, руб.
1 000 000 000
Ставка, руб./м²
174 825

Контакты

  • Компания Садовое кольцо
  • Телефон +7 926 103 ••• Показать

Если вам не удалось дозвониться до собственника в нерабочее время, вы можете заказать обратный звонок.

Заказать обратный звонок

Описание производственного помещения

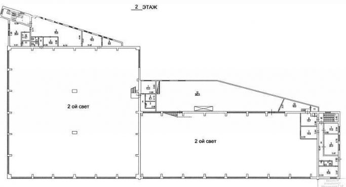
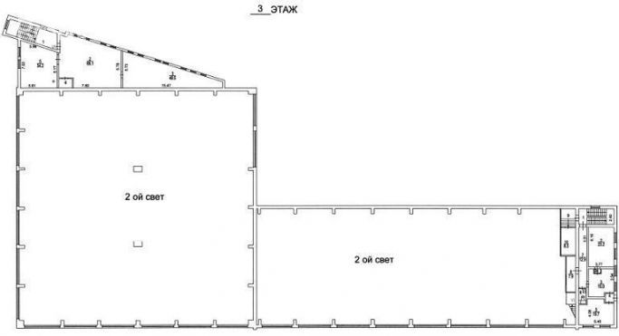
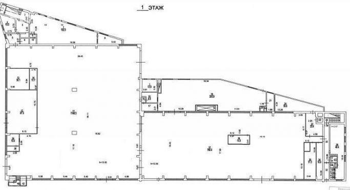
Помещение с мебелью. Михаил. м. Шоссе Энтузиастов, ул. Электродная, д. 8, продается производственное здание 5719,5 кв.м., 1-й этаж - 2737 кв.м., высота потолка 12 м, 2-й этаж - 601,6 кв.м., 3-й этаж — 284,2 кв.м., 4-й этаж - 157,6 кв.м., 5-й этаж и чердак — 1938,5 кв.м., 6 ворот, в одном цеху установлены 2 действующие кран-балки грузоподъемностью 10 т. каждая, пол бетон, 630 кВт, отопления центральное (не в каждом цеху), вода, канализация, бытовые помещения, офисные, парковка, рядом ж/д ветка. Земельный участок 3745 кв.м. в аренде до 2070 г. Продажа в собственность, цена 1 000 000 000 руб. АГЕНТАМ ПРОСЬБА НЕ ЗВОНИТЬ.

Контакты

  • Компания Садовое кольцо
  • Телефон +7 926 103 ••• Показать

Если вам не удалось дозвониться до собственника в нерабочее время, вы можете заказать обратный звонок.

Заказать обратный звонок

Параметры производственного помещения

  • Площадь 5720 м²
  • Стоимость 1 000 000 000 руб.
  • Ставка 174 825 руб./м²
  • Этаж 1-й из 5
  • Объявление от 1 мая 2026 23:10

Расположение производственного помещения на карте

Москва, Электродная улица, 8на картепоказать панораму

Пользователи часто ищут...

Похожие предложения по продаже производственных помещений 

Поможем подобрать помещение бесплатно

Румфи.ру подберет вам производственное помещение от собственника. Мы не агентство, это бесплатно и без комиссии.

 Подробнее 

Популярные производственные и складские комплексы

офисно-складской комплекс «Логопарк Софьино» - превью
3 фото

Офисно-складской комплекс, класс A

Логопарк Софьино

реализуемые площади по запросу

Москва, Новорязанское шоссе
Жулебино770 м

Пожаротушение: две станции пожаротушения с резервуарами на 4 000 м3 с насосами FM-approved и резервными дизельными...

Связаться
бизнес-центр «Агат» - превью
5 фото

Бизнес-центр, класс B

Агат

реализуемые площади по запросу

Москва, Большая Семёновская улица, 40
Электрозаводская470 м

Бизнес центр класса В Агат располагается недалеко от центра Москвы, всего в трех минутах ходьбы от станций...

+7 495 781 •• ••
офисно-складской комплекс «Терминал Булатниково» - превью
2 фото

Офисно-складской комплекс, класс A

Терминал Булатниково

реализуемые площади от 5 000 до 20 000 м²

Москва, Дмитровское шоссе
Селигерская990 м

+7 495 981 •• ••
оптово-розничный продовольственный центр «Фуд Сити» - превью
9 фото

Оптово-розничный продовольственный центр, класс A

Фуд Сити

реализуемые площади по запросу

Москва, Калужское шоссе, 22-й километр, 10
Прокшино2.8 км

Оптово-розничный продовольственный центр Фуд Сити – крупнейший в России и первый в Москве агрокластер. Food City...

+7 495 995 •• ••
складской комплекс «Юго-Восточный Терминал» - превью
4 фото

Складской комплекс, класс C

Юго-Восточный Терминал

реализуемые площади по запросу

Москва, Южнопортовая улица, 21с20
Кожуховская1.5 км

Связаться
производственно-складской комплекс «Хладокомбинат №11» - превью
4 фото

Производственно-складской комплекс, класс B

Хладокомбинат №11

реализуемые площади по запросу

Москва, Михайловский проезд, 3с13
Волгоградский Проспект530 м

Производственно-складской комплекс «Хладокомбинат №11» расположен в юго-восточном районе столицы и предоставляет в...

+7 495 665 •• ••
  Найти по названиюВсе складыВсе производственные комплексы