Площадь, м²
8149
Стоимость, руб. в месяц
9 778 800
Ставка, руб./м² в год
14 400

Не актуально

  • Объявление снято с публикации. Оставьте запрос в консультационный отдел портала Румфи.ру, мы поможем узнать состояние объекта.
Заказать обратный звонок

Описание склада

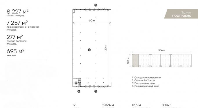
Арт. 110299699 Без комисcий, процeнтов и допoлнитeльных надбавок! Складской комплекс класса А, площадь 8149 кв.м., 12 доковых ворот, кросс-док. Склад расположен в Южном направлении по адресу: новая Москва, д. Евсеево, Калужское шоссе, Варшавское шоссе на расстоянии 18 км от МКАД! - близость до метро Бунинская Аллея, 18 мин. - близость до метро Скобелевская, 20 мин. - близость до метро Щербинка, 18 мин. - рядом со складским комплексом расположена автобусная остановка 10 минут пешком. -Технические параметры склада: Класс: А. Тип: сухой (+16/+20). Этажность: 1 эт. Общая площадь: 40 000 м2. Год постройки: 2025 г. Паркинг (грузовые автомобили). Паркинг (легковые автомобили). Уровень пола: 1.2 м. Шаг колонн: 12 х 24 м. Нагрузка на пол: 5 тонн/м2. Количество доков: 12 шт. Рабочая высота потолков: 12,5 м. Офисные помещения Столовая Тип пола: бетонный пол с антипылевым покрытием. Система пожаротушения: гидранты, спринклерная система Электричество 250 кВт. Инфраструктура: парковки для легкового транспорта, грузовиков. Видеонаблюдение, Охрана 24/7, 2 КПП, СКД. Звоните, мы оперативно организуем просмотр помещения в удобную для вас дату и ответим на все интересующие вопросы! Арендовать склад, аренда склада, склад, Новая Москва склад, склад в Бутово, арендовать помещение, арендовать промышленное помещение, промзоны, промышленные парки, арендовать помещение свободного назначения, аренда склада Подольск, склад А класса

Не актуально

  • Объявление снято с публикации. Оставьте запрос в консультационный отдел портала Румфи.ру, мы поможем узнать состояние объекта.
Заказать обратный звонок

Параметры склада

  • Площадь 8149 м²
  • Стоимость 9 778 800 руб. в месяц
  • Ставка 14 400 руб./м² в год
  • Предложение от собственника
  • Этажность 1
  • Высота потолков 12 метров
  • Объект складской комплекс
  • Объявление от 8 августа 2025 08:30

Расположение склада в складском комплексе на карте

Москва, район Троицк, деревня Евсеево, Евсеевская улица, 78на картепоказать панораму

Пользователи часто ищут...

Похожие предложения по аренде складов 

Поможем подобрать помещение бесплатно

Румфи.ру подберет вам склад от собственника. Мы не агентство, это бесплатно и без комиссии.

 Подробнее 

Популярные производственные и складские комплексы

оптово-розничный продовольственный центр «Фуд Сити» - превью
9 фото

Оптово-розничный продовольственный центр, класс A

Фуд Сити

реализуемые площади по запросу

Москва, Калужское шоссе, 22-й километр, 10
Прокшино2.8 км

Оптово-розничный продовольственный центр Фуд Сити – крупнейший в России и первый в Москве агрокластер. Food City...

+7 495 995 •• ••
складской комплекс «Крекшино» - превью
7 фото

Складской комплекс, класс A

Крекшино

реализуемые площади по запросу

Москва, поселение Марушкинское, деревня Крёкшино

Комплекс расположен на участке 22,2 Га на Юго-Западе от Москвы, в Наро-Фоминском районе Московской области, в 24 км от...

Связаться
производственно-складской комплекс «на Подъёмной улице, 14» - превью
10 фото

Производственно-складской комплекс, класс C

на Подъёмной улице, 14

реализуемые площади по запросу

Москва, Подъёмная улица, 14с5
Авиамоторная1.4 км

ПСК «на Подъёмной улице, 14» – комплекс, расположенный в ЮВАО Москвы, и состоящий из несколький...

+7 495 125 •• ••
офисно-складской комплекс «Аврора» - превью
5 фото

Офисно-складской комплекс, класс B

Аврора

реализуемые площади по запросу

Москва, Алтуфьевское шоссе, 37А
Отрадное1.4 км

ОСК «Аврора» представляет собой современные капитальные здания класса «В». Суммарная площадь помещений составляет 130...

+7 495 663 •• ••
производственно-складской комплекс «Хладокомбинат №11» - превью
4 фото

Производственно-складской комплекс, класс B

Хладокомбинат №11

реализуемые площади по запросу

Москва, Михайловский проезд, 3с13
Волгоградский Проспект530 м

Производственно-складской комплекс «Хладокомбинат №11» расположен в юго-восточном районе столицы и предоставляет в...

+7 495 665 •• ••
офисно-складской комплекс «Логопарк Софьино» - превью
3 фото

Офисно-складской комплекс, класс A

Логопарк Софьино

реализуемые площади по запросу

Москва, Новорязанское шоссе
Жулебино770 м

Пожаротушение: две станции пожаротушения с резервуарами на 4 000 м3 с насосами FM-approved и резервными дизельными...

Связаться
  Найти по названиюВсе складыВсе производственные комплексы