Площадь, м²
66
Стоимость, руб.
79 200 000
Ставка, руб./м²
1 200 000

Контакты

  • Компания Agora estate
  • Телефон +7 903 170 ••• Показать

Если вам не удалось дозвониться до собственника в нерабочее время, вы можете заказать обратный звонок.

Заказать обратный звонок

Описание торгового помещения

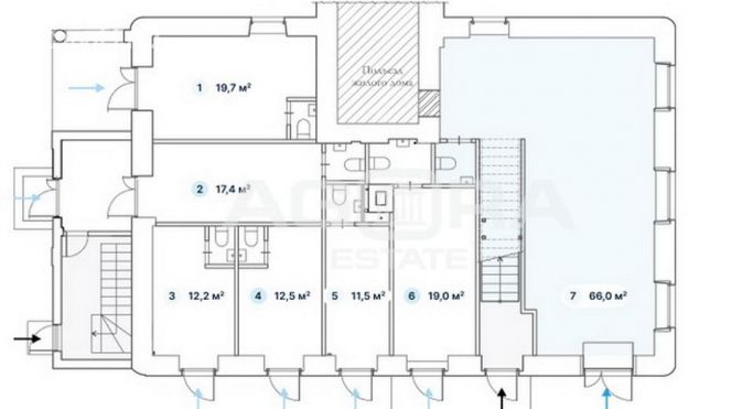
Помещение с отдельным входом. Номер объекта: 551558. Продажа торгового помещения На выходе из метро, станция Бауманская Площадь - 66 м2. Полностью на 1-м этаже (на плане - блок 7). Отдельный вход с улицы. Планировка - открытая (сетка колонн). Состояние - под чистовую отделку. Все городские коммуникации. Место для размещения вывески на фасаде. Помещение имеет отличную визуализацию и высокий торговый потенциал. Потенциальный МАП - 600 000 рублей Район с высокой деловой активностью, плотный пешеходный трафик к метро.Объект № 551558

Контакты

  • Компания Agora estate
  • Телефон +7 903 170 ••• Показать

Если вам не удалось дозвониться до собственника в нерабочее время, вы можете заказать обратный звонок.

Заказать обратный звонок

Параметры торгового помещения

  • Площадь 66 м²
  • Стоимость 79 200 000 руб.
  • Ставка 1 200 000 руб./м²
  • Этаж 1-й из 3
  • Высота потолков 3.25 метра
  • Ремонт, состояние помещения черновая отделка
  • Объект торговый центр «Елоховский пассаж»
  • Объявление от 27 апреля 2026 21:30

Расположение торгового помещения на карте

Москва, Бауманская улица, 33/2на картепоказать панораму

Пользователи часто ищут...

Похожие предложения по продаже торговых помещений 

Поможем подобрать помещение бесплатно

Румфи.ру подберет вам торговое помещение от собственника. Мы не агентство, это бесплатно и без комиссии.

 Подробнее 

Популярные торговые центры и ЖК с коммерческими помещениями

торгово-развлекательный комплекс «Европолис в Ростокино» - превью
10 фото

Торгово-развлекательный комплекс, масштаб суперрегиональный

Европолис в Ростокино

реализуемые площади от 250 м²

Москва, проспект Мира, 211к2
Свиблово1.2 км

«Европолис» в Ростокино входит в десятку самых больших торговых комплексов столицы по арендопригодной площади: GBA...

+7 926 542 •• ••
торгово-развлекательный центр «Океания» - превью
5 фото

Торгово-развлекательный центр, масштаб суперрегиональный

Океания

реализуемые площади от 20 до 3 000 м²

Москва, Кутузовский проспект, 57вл3
Славянский Бульвар340 м

«Океания» – торгово-развлекательный центр с четким фокусом на целевом потребителе – обеспеченных семейных людях 26-45...

+7 495 783 •• ••
торгово-развлекательный комплекс «FORT в Отрадном» - превью
10 фото

Торгово-развлекательный комплекс, масштаб районный

FORT в Отрадном

реализуемые площади по запросу

Москва, улица Декабристов, 12
Отрадное170 м

Торгово-развлекательный комплекс FORT в Отрадном формирует комфортную торговую зону в самом центре Северо-Восточного...

+7 495 933 •• ••
торговый центр «Ханой-Москва» - превью
15 фото

Торговый центр, масштаб региональный

Ханой-Москва

реализуемые площади по запросу

Москва, Ярославское шоссе, 146к1
Бабушкинская4.3 км

Торговый комплекс «Ханой – Москва» входит в состав многофункционального комплекса, объединяющего в себе современные...

Связаться
торгово-развлекательный центр «Vegas Кунцево» - превью
8 фото

Торгово-развлекательный центр, масштаб региональный

Vegas Кунцево

реализуемые площади по запросу

Москва, МКАД, 56-й километр
Молодежная3.3 км

«Vegas Кунцево» – третий проект компании Crocus Group, расположенный на западе Москвы (на пересечении МКАД и Можайского...

Связаться
торговый центр «Каширская Плаза» - превью
12 фото

Торговый центр, масштаб региональный

Каширская Плаза

реализуемые площади по запросу

Москва, Каширское шоссе, 61к2
Домодедовская1.2 км

Новый суперсовременный торговый центр «Каширская Плаза» – очередной амбициозный проект девелопера «ЭНКА ТЦ», которая...

+7 495 937 •• ••
  Найти по названиюВсе торговые центрыВсе ЖК

Подборки – выбор редации