Площадь, м²
4.96
Стоимость, руб. в месяц
12 000
Ставка, руб./м² в год
29 032

Контакты

  • Компания ООО «ПИЛОТ ЛТД»
  • Контактное лицо Сергей Вельяминов
  • Предложение от собственника
  • Телефон +7 933 404 ••• Показать

Если вам не удалось дозвониться до собственника в нерабочее время, вы можете заказать обратный звонок.

Заказать обратный звонок

Описание офиса

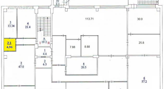
Помещение, площадью 4,96 м2, на 2 этаже 5-этажного бизнес-центра класса B, в 15 мин. пешком от м. Окружная, район города - Отрадное. Номер налоговой объекта - 15, предоставляется юридический адрес. Высота потолков: 3 м. Помещение предоставляется в прямую аренду, срок аренды - любой, с предоплатой за 1 месяц. Включено в ставку: коммунальные платежи, эксплуатационные расходы. Минимальный срок аренды 11 мес. Помещение со стандартной отделкой, комнат в аренду - 1, внутри кабинетная планировка, на полу ковролин. Помещение расположено в Бизнес-центре "Pilot House (Пайлот Хаус)", общая площадь здания 2904 м2, располагается на участке 2203 га, участок находится в аренде, здание полностью функционирует, обслуживает здание управляющая компания ООО "Пилот ЛТД", доступ в здание осуществляется по пропускам, доступ в здание круглосуточный. Вход в помещение - общий с улицы. В здании есть охрана, местное кондиционирование, вентиляция - приточная, центральное отопление, гидрантная система пожаротушения. Парковка автомобилей - наземная.[#8144577#]

Контакты

  • Компания ООО «ПИЛОТ ЛТД»
  • Контактное лицо Сергей Вельяминов
  • Предложение от собственника
  • Телефон +7 933 404 ••• Показать

Если вам не удалось дозвониться до собственника в нерабочее время, вы можете заказать обратный звонок.

Заказать обратный звонок

Параметры офиса

  • Площадь 4.96 м²
  • Стоимость 12 000 руб. в месяц
  • Ставка 29 032 руб./м² в год
  • Предложение от собственника
  • Этаж 2-й из 5
  • Высота потолков 3 метра
  • Ремонт, состояние помещения хороший ремонт
  • Объект бизнес-центр
  • Класс БЦ B
  • Объявление от 4 мая 2026 17:30

Что нужно знать, какие вопросы стоит задать при покупке или аренде офиса

В этой статье мы постараемся простым человеческим языком без заумных терминов осветить некоторые важные моменты, о которых не стоит забывать, покупая или арендуя офисное помещение.

журнал Румфи.ру

Расположение офиса в бизнес-центре на карте

Москва, Алтуфьевское шоссе, 13к5на картепоказать панораму

Пользователи часто ищут...

Похожие предложения по аренде офисов 

Поможем подобрать помещение бесплатно

Румфи.ру подберет вам офис от собственника. Мы не агентство, это бесплатно и без комиссии.

 Подробнее 

Популярные бизнес-центры

бизнес-центр BELL - превью
8 фото

Бизнес-центр, класс Prime

BELL

реализуемые площади по запросу

Москва, 1-я улица Ямского Поля, 10А
Белорусская410 м

BELL – офисный небоскреб, высотой более 220 метров, который предназначен для самых требовательных резидентов.

+7 495 255 •• ••
бизнес-центр «Берзарина 36» - превью
4 фото

Бизнес-центр, класс B

Берзарина 36

реализуемые площади по запросу

Москва, улица Берзарина, 36с1
Октябрьское Поле1.7 км

Три аккуратных небольших строения четыре и три этажа это все бизнес-центр Берзарина 36, в котором все желающие могут...

Связаться
офисный парк Comcity - превью
18 фото

Офисный парк, класс A

Comcity

реализуемые площади от 1 000 до 6 000 м²

Москва, поселение Московский, Киевское шоссе, 22-й километр, 6с1
Румянцево620 м

Comcity – современный фешенебельный офисный парк класса А от девелопера PPF Real Estate Russia, находящийся на...

+7 495 799 •• ••
бизнес-центр «Парк Мира» - превью
13 фото

Бизнес-центр, класс B+

Парк Мира

реализуемые площади от 30 до 1 185 м²

Москва, проспект Мира, 102к1
Алексеевская810 м

Бизнес-центр «Парк Мира» - это комфортабельный деловой комплекс класса «B+». Здание включает в себя лучшие...

+7 495 135 •• ••
бизнес-парк Ostankino Business Park - превью
9 фото

Бизнес-парк, класс A

Ostankino Business Park

реализуемые площади от 70 м²

Москва, Огородный проезд, 16с14
Бутырская200 м

OSTANKINO BUSINESS PARK располагается в СВАО Москвы, в районе Бутырский. Бизнес-парк Класса А. Шесть зданий высотой до...

+7 495 480 •• ••
деловой центр JAZZ - превью
14 фото

Деловой центр, класс B+

JAZZ

реализуемые площади от 53 до 110 м²

Москва, улица Сущёвский Вал, 49с2
Марьина Роща270 м

Деловой центр JAZZ удобно расположился в Северо-Восточном административном округе Москвы, в районе Марьина Роща, и...

+7 495 104 •• ••
  Найти по названиюВсе бизнес-центры

Подборки – выбор редации