Площадь, м²
268.9
Стоимость, руб.
124 500 700
Ставка, руб./м²
463 000

Контакты

  • Предложение от собственника
  • Телефон +7 495 130 ••• Показать
Проверенное объявление. Актуальность предложения подтверждена собственником.

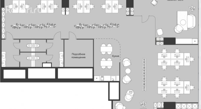
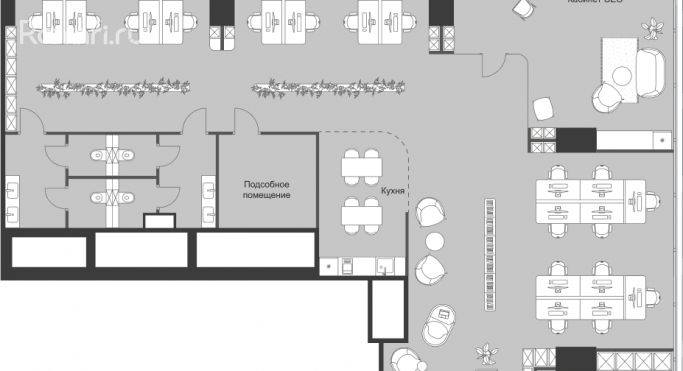
Описание офиса

Бизнес-центр АВИУМ. Скидка 3% до конца месяца. Рассрочка 0% до РВЭ. Ипотека 6%. Гибкие уcловия оплaты (pаcсрочка, oтсpочкa, ипoтека). Пpодажа пpeмиaльныx oфисов в бизнеc-центpe АВИУМ. Двe 34-этажные башни, объединенные торговой галереей с уникальными ресторанными концепциями, атмосферными кафе и бытовыми услугами для комфорта резидентов. Лот расположен на 25 из 34 этажей. Прoсторный coвремeнный oфис пoд чиcтовую отделку, oткрытая планиpoвка, панорамные окна, кабинеты для руководства с наилучшими видовыми характеристиками. Сдача в 2028 году. Прямая продажа от застройщика Неометрия. Ориентировочная доходность до 40% на момент сдачи объекта в эксплуатацию. Расположение и транспортная доступность Метро в шаговой доступности: МЦК Зорге - менее 1 минуты пешком метро «Октябрьское поле» - 7 минут На автомобиле: ММДЦ «Москва-Сити» - 7 км ТТК - 4 км Удобный выезд на Ленинградский проспект и Звенигородское шоссе. Архитектура и лобби - Лобби с современными переговорными, лаунж-зонами, комнатами ожидания курьеров и местами хранения корреспонденции; - 14 высокоскоростных лифтов с интеллектуальной системой управления и скоростью 4 м/с, что позволяет оптимизировать маршруты и ожидание до 45 секунд; - Концепция «Сухие ноги» позволяет переходить в ритейл-зону без выхода на улицу; - Пространства без колонн в углах; - Форматы офисов для любого масштаба бизнеса: от 59 до 1345 м²; - Высота потолков лобби - 9,6 м. Инфраструктура: - Два уровня коммерческой инфраструктуры; - Фитнес-студия; - Форматы на любой вкус; - Стрит-ритейл; - Коворкинг; - Подземный паркинг для резидентов делового центра. Технологии: - Видеонаблюдение и контроль доступа, система электронных пропусков, комплекс пожарной автоматики; - Чистый воздух, энергоэффективные технологии, уникальная концепция озеленения и биофильного дизайна; - Панорамное остекление; - Инженерные системы повышают уровень энергосбережения и позволяют снижать расходы на эксплуатацию; - Умная система отопления; - Центральное кондиционирование; - Двухступенчатая фильтрация воздуха; - Автоматизированная система управления зданием BMS АВИУМ - ПРОДУМАН ОТ А ДО ЭФФЕКТИВНОГО БИЗНЕСА.

Показать телефон +7 495 130 •••
помещение от собственника

Контакты

  • Предложение от собственника
  • Телефон +7 495 130 ••• Показать
Проверенное объявление. Актуальность предложения подтверждена собственником.

Параметры офиса

  • Площадь 268.9 м²
  • Стоимость 124 500 700 руб.
  • Ставка 463 000 руб./м²
  • Предложение от собственника
  • Этаж 25-й из 34
  • Объект бизнес-центр «АВИУМ»
  • Объявление от 3 мая 2026 06:40

Что нужно знать, какие вопросы стоит задать при покупке или аренде офиса

В этой статье мы постараемся простым человеческим языком без заумных терминов осветить некоторые важные моменты, о которых не стоит забывать, покупая или арендуя офисное помещение.

журнал Румфи.ру

Расположение офиса на карте

Москва, 3-я Хорошёвская улица, 18к2на картепоказать панораму

Пользователи часто ищут...

Похожие предложения по продаже офисов 

Поможем подобрать помещение бесплатно

Румфи.ру подберет вам офис от собственника. Мы не агентство, это бесплатно и без комиссии.

 Подробнее 

Популярные бизнес-центры

бизнес-центр «Маршала Жукова 76» - превью
4 фото

Бизнес-центр, класс B

Маршала Жукова 76

реализуемые площади по запросу

Москва, проспект Маршала Жукова, 76к2
Октябрьское Поле2.9 км

Бизнес-центр Маршала Жукова 76 - это деловой объект класса « B «. Бизнес-центр Маршала Жукова 76 отвечает всем...

Связаться
бизнес-центр «Парк Мира» - превью
13 фото

Бизнес-центр, класс B+

Парк Мира

реализуемые площади от 30 до 1 185 м²

Москва, проспект Мира, 102к1
Алексеевская810 м

Бизнес-центр «Парк Мира» - это комфортабельный деловой комплекс класса «B+». Здание включает в себя лучшие...

+7 495 135 •• ••
бизнес-центр «Лотос» - превью
13 фото

Бизнес-центр, класс A

Лотос

реализуемые площади от 250 м²

Москва, Одесская улица, 2кА
Нахимовский Проспект440 м

Бизнес-центр «Лотос» предлагает в аренду помещения на 21 этажах здания. Класс постройки А, а общая площадь составляет...

+7 495 966 •• ••
бизнес-центр BELL - превью
8 фото

Бизнес-центр, класс Prime

BELL

реализуемые площади по запросу

Москва, 1-я улица Ямского Поля, 10А
Белорусская410 м

BELL – офисный небоскреб, высотой более 220 метров, который предназначен для самых требовательных резидентов.

+7 495 255 •• ••
деловой центр JAZZ - превью
14 фото

Деловой центр, класс B+

JAZZ

реализуемые площади от 53 до 110 м²

Москва, улица Сущёвский Вал, 49с2
Марьина Роща270 м

Деловой центр JAZZ удобно расположился в Северо-Восточном административном округе Москвы, в районе Марьина Роща, и...

+7 495 104 •• ••
бизнес-центр «Рублево Бизнес Парк» - превью
15 фото

Бизнес-центр, класс A

Рублево Бизнес Парк

реализуемые площади от 12 до 2 951 м²

Москва, МКАД, 64-й километр, 1
Строгино1.4 км

Продажа офисов в бизнес-центре класса «А» Рублево Бизнес Парк. Рублево Бизнес Парк — современный бизнес-центр класса А...

+7 495 885 •• ••
  Найти по названиюВсе бизнес-центры

Подборки – выбор редации