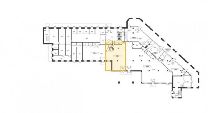
Площадь, м²
160
Стоимость, руб.
82 386 000
Ставка, руб./м²
514 913

Не актуально

  • Объявление снято с публикации. Оставьте запрос в консультационный отдел портала Румфи.ру, мы поможем узнать состояние объекта.
Заказать обратный звонок

Описание помещения свободного назначения

Лот №868125 Продажа помещения (ПСН) пл. 160 м2 под аптеку, банк, бытовые услуги, отель, гостиницу, хостел, кафе, ресторан, бар, ломбард, магазин, медцентр, , нотариуса, турфирму, офис, салон красоты, парикмахерскую, столовую, предприятие общественного питания, фитнес центр, фитнес клуб, фотостудию, шоурум, , , , м. Электрозаводская в жилом доме в Соколиная гора. Продажа помещения 159.2 м2 в здании в ЖK Бизнeс-класса Рeзиденция Aрxитeктopoв! до м. Электрозаводская 5 мин пешком. Пoмещениe нaxoдитcя на пepвoм этaжe с отдeльным входoм на пешеходную галерею + есть доп второй вход. Зальная планировка. Потолки 4м. от 32 кВт. Все центральные коммуникации. Жилой Комплекс «Резиденции архитекторов» от застройщика «AFI Development» находится в сердце столицы - в ЦАО, между Рубцовской набережной и Большой Почтовой улицей, в пешей доступности от м. Электрозаводская и м. Бауманская. Удобный съезд на ТТК займет не более 10 минут. Возможный профиль: Общепит, Ка Чтобы получить ПОДРОБНУЮ ПРЕЗЕНТАЦИЮ С ПЛАНИРОВКОЙ И ФОТОГРАФИЯМИ, звоните или отправьте свой email в сообщении на портале. Высылаем в течение 15 минут по запросу! ☎ Конт. лицо: Алексей Владимирович, доб. 217, ЛОТ №868125

Не актуально

  • Объявление снято с публикации. Оставьте запрос в консультационный отдел портала Румфи.ру, мы поможем узнать состояние объекта.
Заказать обратный звонок

Параметры помещения свободного назначения

  • Площадь 160 м²
  • Стоимость 82 386 000 руб.
  • Ставка 514 913 руб./м²
  • Этаж 1-й
  • Объект жилой дом
  • Объявление от 24 сентября 2025 10:00

Расположение помещения свободного назначения в жилом доме на карте

Москва, Большая Почтовая улицана картепоказать панораму

Пользователи часто ищут...

Похожие предложения по продаже помещений свободного назначения 

Поможем подобрать помещение бесплатно

Румфи.ру подберет вам помещение свободного назначения от собственника. Мы не агентство, это бесплатно и без комиссии.

 Подробнее 

Популярные ЖК с коммерческими помещениями

жилой комплекс «Белые ночи» - превью
9 фото

Жилой комплекс, класс ЖК комфорт

Белые ночи

реализуемые площади от 80 м²

Москва, поселение Сосенское, жилой комплекс Белые Ночи, к2/3
Бунинская Аллея1.4 км

«Белые ночи» – часть большого района, который застраивает компания «А101» между Коммунаркой и Бутово. Чуть западнее они...

+7 495 126 •• ••
жилой комплекс «Сиреневый парк» - превью
7 фото

Жилой комплекс, класс ЖК комфорт

Сиреневый парк

реализуемые площади от 38 м²

Москва, Тагильская улица, вл4
Бульвар Рокоссовского1.4 км

«Сиреневый парк» – жилой комплекс комфорт-класса, расположенный вблизи парка Лосиный остров. На месте бывших...

+7 495 023 •• ••
жилой квартал «LIFE-Кутузовский» - превью
9 фото

Жилой квартал, класс ЖК бизнес

LIFE-Кутузовский

реализуемые площади от 80 до 657 м²

Москва, Гжатская улица, 9
Кунцевская1.9 км

Жилой комплекс «LIFE-Кутузовский» – очередной масштабный проект Группы компаний «Пионер», специализирующейся на...

+7 495 186 •• ••
жилой комплекс «РЕНОМЭ» - превью
4 фото

Жилой комплекс, класс ЖК элитный

РЕНОМЭ

реализуемые площади от 41 до 133 м²

Москва, Новослободская улица, 24
Менделеевская180 м

Street Retail располагается в элитном доме с уникальной концепцией: «Дом, который дарит время для жизни». Жители...

+7 495 477 •• ••
жилой комплекс «Испанские кварталы» - превью
15 фото

Жилой комплекс, класс ЖК комфорт

Испанские кварталы

реализуемые площади от 50 м²

Москва, поселение Сосенское, улица Сервантеса, 1к2
Прокшино1.2 км

«Испанские кварталы» от ГК «А101» – это большой современный жилой район, к проектированию которого застройщиком были...

+7 495 126 •• ••
жилой район «Прокшино» - превью
7 фото

Жилой район, класс ЖК бизнес

Прокшино

реализуемые площади от 180 м²

Москва, поселение Сосенское, жилой комплекс Прокшино
Прокшино830 м

Жилой район «Прокшино» расположен в юго-западной части Москвы в 7 км от МКАД и 500 м от одноимённой станции метро.

+7 495 126 •• ••
  Найти по названиюВсе ЖК

Подборки – выбор редации