Площадь, м²
93
Стоимость, руб. в месяц
325 500
Ставка, руб./м² в год
42 000

Не актуально

  • Объявление снято с публикации. Оставьте запрос в консультационный отдел портала Румфи.ру, мы поможем узнать состояние объекта.
Заказать обратный звонок

Описание помещения свободного назначения

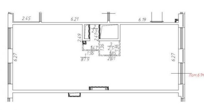
Лот №864992 Аренда помещения (ПСН) пл. 93 м2 м. ЗИЛ (МЦК) в жилом доме в Даниловский. Жилой комплекс бизнес-класса расположен в престижном Даниловском районе в 5 км от центра столицы. «ЗИЛАРТ» — флагманский проект от «Группы ЛСР» Весь комплекс насчитывает около 9 000 квартир. В аренду предлагается соседнее со стилобатом помещение площадью 92,9 кв.м. Все соседние корпуса заселены, активный жилой массив и приятный для арендатора трафик. Большие витринные окна на две стороны, высокие потолки, много пространства. Электрическая мощность - 20 кВт. Стоимость аренды: 42000 руб/м2/год (325500 руб в месяц) УСН. В цену включено: эксплуатационные расходы. В цену не включено: затраты на электричество, коммунальные расходы, уборка. Чтобы получить ПОДРОБНУЮ ПРЕЗЕНТАЦИЮ С ПЛАНИРОВКОЙ И ФОТОГРАФИЯМИ, звоните или отправьте свой email в сообщении на портале. Высылаем в течение 15 минут по запросу! ☎ Конт. лицо: Юлия , доб. 301, ЛОТ №864992

Не актуально

  • Объявление снято с публикации. Оставьте запрос в консультационный отдел портала Румфи.ру, мы поможем узнать состояние объекта.
Заказать обратный звонок

Параметры помещения свободного назначения

  • Площадь 93 м²
  • Стоимость 325 500 руб. в месяц
  • Ставка 42 000 руб./м² в год
  • Этаж 1-й
  • Объект жилой дом
  • Объявление от 14 августа 2025 10:00

Расположение помещения свободного назначения в жилом доме на карте

Москва, улица Родченкона картепоказать панораму

Пользователи часто ищут...

Похожие предложения по аренде помещений свободного назначения 

Поможем подобрать помещение бесплатно

Румфи.ру подберет вам помещение свободного назначения от собственника. Мы не агентство, это бесплатно и без комиссии.

 Подробнее 

Популярные ЖК с коммерческими помещениями

жилой квартал «LIFE-Кутузовский» - превью
9 фото

Жилой квартал, класс ЖК бизнес

LIFE-Кутузовский

реализуемые площади от 80 до 657 м²

Москва, Гжатская улица, 9
Кунцевская1.9 км

Жилой комплекс «LIFE-Кутузовский» – очередной масштабный проект Группы компаний «Пионер», специализирующейся на...

+7 495 186 •• ••
жилой комплекс «Скандинавия» - превью
10 фото

Жилой комплекс, класс ЖК комфорт

Скандинавия

реализуемые площади от 18 м²

Москва, поселение Сосенское, Скандинавский бульвар, 3к1
Коммунарка2 км

Жилой район «Скандинавия» от ГК «А101» находится в ТиНАО Москвы, всего в 6,5 км от МКАД. Несмотря на близость к трем...

+7 495 877 •• ••
жилой комплекс «Сиреневый парк» - превью
7 фото

Жилой комплекс, класс ЖК комфорт

Сиреневый парк

реализуемые площади от 38 м²

Москва, Тагильская улица, вл4
Бульвар Рокоссовского1.4 км

«Сиреневый парк» – жилой комплекс комфорт-класса, расположенный вблизи парка Лосиный остров. На месте бывших...

+7 495 023 •• ••
жилой комплекс «Династия» - превью
15 фото

Жилой комплекс, класс ЖК элитный

Династия

реализуемые площади от 49 до 226 м²

Ярославль, улица Свободы, 62Б

На сегодняшний день жилой комплекс бизнес-класса «Династия» является самым стильным и престижным объектом недвижимости...

+7 485 223 •• ••
жилой комплекс «Белые ночи» - превью
9 фото

Жилой комплекс, класс ЖК комфорт

Белые ночи

реализуемые площади от 80 м²

Москва, поселение Сосенское, жилой комплекс Белые Ночи, к2/3
Бунинская Аллея1.4 км

«Белые ночи» – часть большого района, который застраивает компания «А101» между Коммунаркой и Бутово. Чуть западнее они...

+7 495 126 •• ••
жилой комплекс «LIFE Ботанический сад» - превью
4 фото

Жилой комплекс, класс ЖК бизнес

LIFE Ботанический сад

реализуемые площади от 25 до 400 м²

Москва, проезд Серебрякова, 2Гс2
Ботанический Сад140 м

ЖК «LIFE Ботанический сад» – это новый масштабный проект жилого квартала от ГК «Пионер», надежного застройщика, на...

+7 495 186 •• ••
  Найти по названиюВсе ЖК

Подборки – выбор редации