Площадь, м²
808
Стоимость, руб. в месяц
1 000 000
Ставка, руб./м² в год
14 851

Контакты

  • Компания владелец
  • Контактное лицо Виктория
  • Предложение от собственника
  • Телефон +7 991 778 ••• Показать

Если вам не удалось дозвониться до собственника в нерабочее время, вы можете заказать обратный звонок.

Заказать обратный звонок

Описание торгового помещения

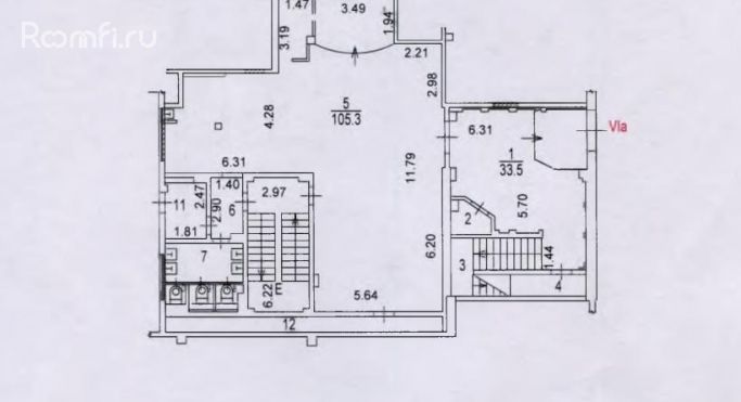
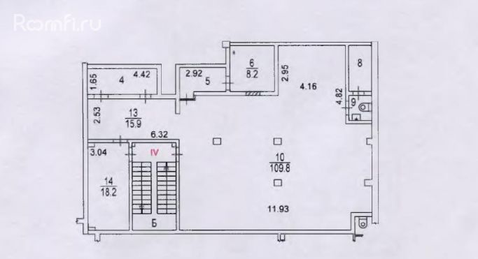
Помещение с мебелью. Предлагаю в аренду помещение в торговом комплексе площадью 808 кв.м, в прямую аренду, на любой срок с предоплатой за 1 месяц, с возможностью арендных каникул. В ставку включены: эксплуатационные расходы. Минимальный срок аренды 11 мес, юридический адрес не предоставляется. Помещение располагается в 3-этажном отдельно стоящем здании класса B в 3 мин. транспортом от м.Крымская, район Академический. Помещение располагается на 1 этаже здания. Возможное назначение помещения - общепит, высота потолков 3 м, внутри типовой ремонт, помещение с мебелью, 3 мокрые точки, окна выходят окна во двор и на улицу, эскалаторов нет, лифтов нет, траволаторов нет, здание на первой линии, здание функционирует круглосуточно, участок находится в собственности. Внутри центральное кондиционирование, вентиляция - приточная, центральное отопление, есть водоснабжение, спринклерная система пожаротушения. Доступ в здание свободный. Вход в помещение - отдельный с улицы.[#7794628#]

Контакты

  • Компания владелец
  • Контактное лицо Виктория
  • Предложение от собственника
  • Телефон +7 991 778 ••• Показать

Если вам не удалось дозвониться до собственника в нерабочее время, вы можете заказать обратный звонок.

Заказать обратный звонок

Параметры торгового помещения

  • Площадь 808 м²
  • Стоимость 1 000 000 руб. в месяц
  • Ставка 14 851 руб./м² в год
  • Предложение от собственника
  • Этаж 1-й из 3
  • Высота потолков 3 метра
  • Ремонт, состояние помещения хороший ремонт
  • Объект отдельно стоящее здание
  • Объявление от 15 декабря 2025 07:30

Расположение торгового помещения в отдельно стоящем здании на карте

Москва, улица Шверника, 13к1на картепоказать панораму

Пользователи часто ищут...

Похожие предложения по аренде торговых помещений 

Поможем подобрать помещение бесплатно

Румфи.ру подберет вам торговое помещение от собственника. Мы не агентство, это бесплатно и без комиссии.

 Подробнее 

Популярные торговые центры и ЖК с коммерческими помещениями

торгово-развлекательный центр «Саларис» - превью
4 фото

Торгово-развлекательный центр, масштаб региональный

Саларис

реализуемые площади по запросу

Москва, поселение Московский, Киевское шоссе, 23-й километр, 1
Саларьево260 м

«Саларис» – торгово-развлекательный центр в Новой Москве — творение голливудского архитектурного бюро 5+design.

+7 495 850 •• ••
торгово-развлекательный центр «Океания» - превью
5 фото

Торгово-развлекательный центр, масштаб суперрегиональный

Океания

реализуемые площади от 20 до 3 000 м²

Москва, Кутузовский проспект, 57вл3
Славянский Бульвар340 м

«Океания» – торгово-развлекательный центр с четким фокусом на целевом потребителе – обеспеченных семейных людях 26-45...

+7 495 783 •• ••
жилой комплекс «Скандинавия» - превью
10 фото

Жилой комплекс, класс ЖК комфорт

Скандинавия

реализуемые площади от 18 м²

Москва, поселение Сосенское, Скандинавский бульвар, 3к1
Коммунарка2 км

Жилой район «Скандинавия» от ГК «А101» находится в ТиНАО Москвы, всего в 6,5 км от МКАД. Несмотря на близость к трем...

+7 495 877 •• ••
торгово-развлекательный центр «Хорошо!» - превью
13 фото

Торгово-развлекательный центр, масштаб окружной

Хорошо!

реализуемые площади от 20 до 3 000 м²

Москва, Хорошёвское шоссе, 27
Хорошёвская120 м

ТРЦ «Хорошо!» - новый амбициозный проект компании «ТПС Недвижимость», открытый в Москве в сентябре 2016 года. Так же...

+7 495 783 •• ••
детский парк развлечений «Остров мечты» - превью
9 фото

Детский парк развлечений, масштаб суперрегиональный

Остров мечты

реализуемые площади по запросу

Москва, парк Нагатинская пойма
Технопарк560 м

Детский парк развлечений «Остров мечты», возводимый в Нагатинской пойме при поддержке Правительства Москвы, станет без...

Связаться
торгово-развлекательный центр «Vegas Кунцево» - превью
8 фото

Торгово-развлекательный центр, масштаб региональный

Vegas Кунцево

реализуемые площади по запросу

Москва, МКАД, 56-й километр
Молодежная3.3 км

«Vegas Кунцево» – третий проект компании Crocus Group, расположенный на западе Москвы (на пересечении МКАД и Можайского...

Связаться
  Найти по названиюВсе торговые центрыВсе ЖК

Подборки – выбор редации