Площадь, м²
706.6
Стоимость, руб.
270 000 000
Ставка, руб./м²
382 112

Не актуально

  • Объявление снято с публикации. Оставьте запрос в консультационный отдел портала Румфи.ру, мы поможем узнать состояние объекта.
Заказать обратный звонок

Описание торгового помещения

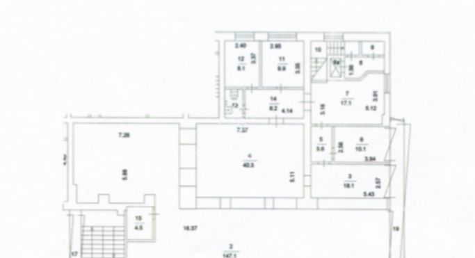
Id 23662. Продается помещение в прекрасном месте в одном из самых престижных районов исторического центра Москвы, Якиманка. Первая линия, очень проходное место на улице Шаболовка, между метро Октябрьская и Шаболовская и в 10 минутах пешком от станции метро Серпуховская. Помещение расположено в монолитном доме 1962 года постройки, имеет свой отдельный вход с улицы. Также есть возможность сделать второй вход, также с улицы, и разделить потоки. Помещение имеет 348,1 метр торговых площадей на первом этаже, включая офисную зону, санузел и кухню. Также 358,5 метров складских помещений в подвале, включая санузел. Подвал имеет также дополнительный отдельный вход со двора, магистраль разгрузки. Вся приточно-вытяжная вентиляция имеется в соответствии с нормами. Отопление центральное. Свет 50 кВтч. Двор с парковкой за шлагбаумом. Удобный подъезд к зоне погрузки-разгрузки товара. Помещение в данной локации всегда будет ликвидным и сдаваться по высокой арендной ставке, или приносить доход при ведении собственного бизнеса. Есть возможность присоединения дополнительных площадей. Арт. 91804585

Не актуально

  • Объявление снято с публикации. Оставьте запрос в консультационный отдел портала Румфи.ру, мы поможем узнать состояние объекта.
Заказать обратный звонок

Параметры торгового помещения

  • Площадь 706.6 м²
  • Стоимость 270 000 000 руб.
  • Ставка 382 112 руб./м²
  • Предложение от собственника
  • Этаж 1-й из 5
  • Высота потолков 4.05 метра
  • Объект офисно-жилой комплекс
  • Парковка отдельная парковка
  • Объявление от 8 сентября 2025 08:30

Расположение торгового помещения в офисно-жилом комплексе на карте

Москва, улица Шаболовка, 25к2на картепоказать панораму

Пользователи часто ищут...

Похожие предложения по продаже торговых помещений 

Поможем подобрать помещение бесплатно

Румфи.ру подберет вам торговое помещение от собственника. Мы не агентство, это бесплатно и без комиссии.

 Подробнее 

Популярные торговые центры и ЖК с коммерческими помещениями

торгово-развлекательный комплекс «FORT в Отрадном» - превью
10 фото

Торгово-развлекательный комплекс, масштаб районный

FORT в Отрадном

реализуемые площади по запросу

Москва, улица Декабристов, 12
Отрадное170 м

Торгово-развлекательный комплекс FORT в Отрадном формирует комфортную торговую зону в самом центре Северо-Восточного...

+7 495 933 •• ••
торговый центр «Ханой-Москва» - превью
15 фото

Торговый центр, масштаб региональный

Ханой-Москва

реализуемые площади по запросу

Москва, Ярославское шоссе, 146к1
Бабушкинская4.3 км

Торговый комплекс «Ханой – Москва» входит в состав многофункционального комплекса, объединяющего в себе современные...

Связаться
торговый центр «Каширская Плаза» - превью
12 фото

Торговый центр, масштаб региональный

Каширская Плаза

реализуемые площади по запросу

Москва, Каширское шоссе, 61к2
Домодедовская1.2 км

Новый суперсовременный торговый центр «Каширская Плаза» – очередной амбициозный проект девелопера «ЭНКА ТЦ», которая...

+7 495 937 •• ••
торгово-развлекательный центр «Vegas Кунцево» - превью
8 фото

Торгово-развлекательный центр, масштаб региональный

Vegas Кунцево

реализуемые площади по запросу

Москва, МКАД, 56-й километр
Молодежная3.3 км

«Vegas Кунцево» – третий проект компании Crocus Group, расположенный на западе Москвы (на пересечении МКАД и Можайского...

Связаться
жилой комплекс «Скандинавия» - превью
10 фото

Жилой комплекс, класс ЖК комфорт

Скандинавия

реализуемые площади от 18 м²

Москва, поселение Сосенское, Скандинавский бульвар, 3к1
Коммунарка2 км

Жилой район «Скандинавия» от ГК «А101» находится в ТиНАО Москвы, всего в 6,5 км от МКАД. Несмотря на близость к трем...

+7 495 127 •• ••
торгово-развлекательный центр «Саларис» - превью
4 фото

Торгово-развлекательный центр, масштаб региональный

Саларис

реализуемые площади по запросу

Москва, поселение Московский, Киевское шоссе, 23-й километр, 1
Саларьево260 м

«Саларис» – торгово-развлекательный центр в Новой Москве — творение голливудского архитектурного бюро 5+design.

+7 495 850 •• ••
  Найти по названиюВсе торговые центрыВсе ЖК

Подборки – выбор редации